Zhengzhou Greenland Central Plaza
Architekturentwurf von Gerkan, Marg und Partner


8. Mai 2025

Bei der Stadtplanung , in der Architektur setzt China auf das beste der Welt. So auch Zhengzhou. Dort entwarf das Hamburger Architekturbüro Gerkan, Marg und Partner gleich mehrere Großprojekte.

284 Meter ragen die Greenland Towers in den Himmel der ostchinesischen Metropole. Die Neubauten von gmp bilden den westlichen Abschluss einer städtebaulichen Achse, die vom neuen Bahnhof im Osten der Stadt in Richtung Zentrum führt. Wie ein Eingangstor zur Stadt stehen die Zwillingstürme dem liegenden Baukörper des Bahnhofs als vertikales Pendant gegenüber. Zwischen den Hochhäusern spannt sich ein verbindender Platz auf. An der Basis sind beiden Türmen L-förmige Podiumsbauten mit kommerziellen Nutzungen zur Seite gestellt. Auf 63 Geschossen beherbergen die Greenland Towers überwiegend Büros.

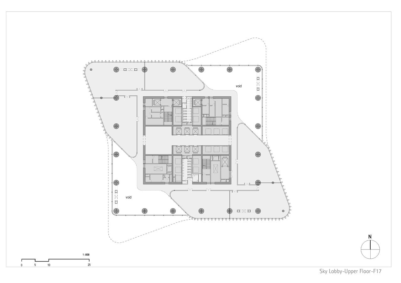
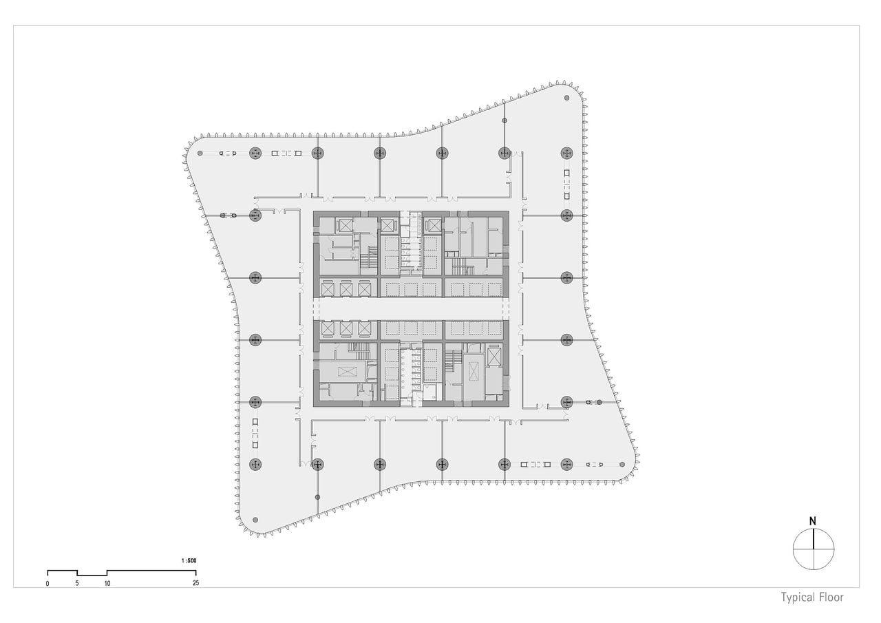
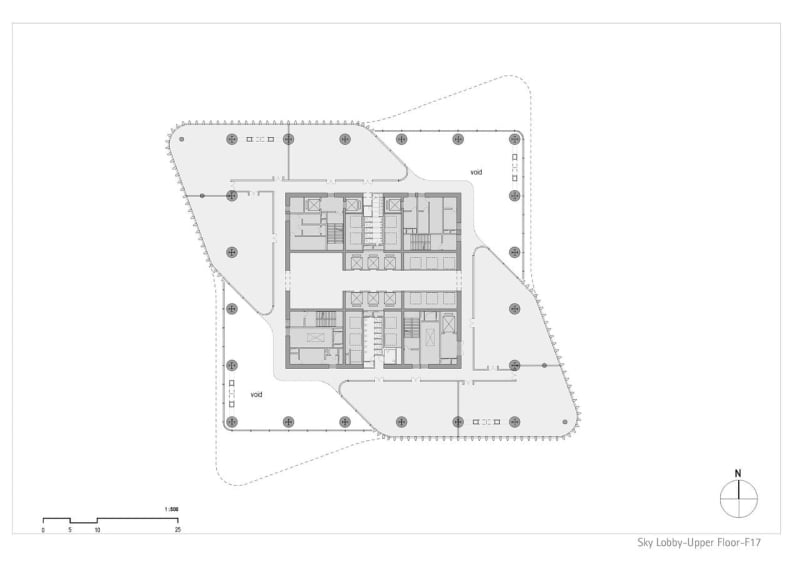
Ein Turm umfasst rund 232.000 Quadratmeter – vergleichsweise viel Fläche für ein Hochhaus dieser Höhe, was auf die mit 4.000 Quadratmetern sehr große Geschossfläche zurückzuführen ist. Die Grundrisse der Türme sind um einen quadratischen Gebäudekern windmühlenartig versetzt angelegt. Alle Büros profitieren von einer natürlichen Belüftung mittels verdeckter Öffnungen in den Fassadenprofilen. Versetzte Einschnitte, die Sky Lobbys, gliedern die charakteristische Silhouette der Hochhäuser. Mit den Sky Lobbys verfügen die Bürotürme alle acht Geschosse über repräsentative Flächen in der Vertikalen. In den obersten Geschossen der Greenland Towers befindet sich das achtgeschossige „Sky Atrium“, das einer exklusiven Nutzung vorbehalten ist.

Auszeichnungen / Zertifizierungen 2019
CTBUH Awards 2020 - 2018
The Plan Award "Office & Business", Finalist
Internationaler Hochhauspreis 2018, Nominierung

Wettbewerbsgewinn 2010
Fertigstellung 2017
Entwurf Meinhard von Gerkan und Stephan Schütz mit Nicolas Pomränke
Bauherr Zhongyuan Real Estate Business Department of Shanghai Greenland Group
BGF 746.202 m² (572.493 m² oberirdisch, 173.709 m² unterirdisch)

gmp

© Fotos:
gmp Architekten
ZMG China
Zeng Jianghe


Links

VIDEO. Greenland Central Plaza

Zwillingstürme in Zhengzhou von gmp fertiggestellt

Zwillingstürme in Zhengzhou: Doppelt gesichert



ASIA MEDIA SERVICE, Dr. Thomas Kiefer

Mobirise
Mobirise
Mobirise
Mobirise

No Code Website Builder